Pendant les SOLDES SLID'UP, bénéficiez de -10% de réduction avec le code promo SLIDUPSOLDES (hors motorisations de volets battants). Profitez-en jusqu'au 25-01-2026 !

  • -25%
search

Motorisation pour volet 1 battant droit SLID'UP BRA-VO radio

Reference : W0002420

  • Motorisation en applique pour volet battant
  • Commande radio avec télécommande
  • Pour 1 vantail droit (vu de l'extérieur)
  • Poids max du vantail : 50 kg
  • Fabriqué en France
  • Garantie : 2 ans
  • Quantité : 1
En stock

Livraison sous 3 à 5 jours

598,33 € TTC
448,75 € TTC Ou 3x 149.58 € sans frais
Type de commande
Nombre de vantail (vu de l'extérieur)
Configuration sélectionnée : W0002420
Quantité

Description

Attention : Volet non compris dans le kit.

Motorisation de volet 1 battant droit BRA-VO radio 230V.

Motorisation pour une installation en applique, idéale dans le cas d'un linteau cintré, arrondi.
Les motorisations BRA-VO s'adaptent sur tous types de volets battants (bois, PVC, aluminium...), en neuf ou en rénovation.

Pour plus de détails, consultez la notice de pose.

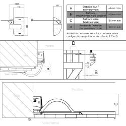
Spécifications à respecter :
- Largeur du vantail : 40 cm min / 80 cm max
- Surface max du vantail : 1,6 m²
- Poids max du vantail : 50 kg
- Largeur tableau : 15 cm
- Distance max axe du gond / bord du volet : 40 mm

Description :
- Kit complet, prêt à la pose : la motorisation pour volet battant BRA-VO se monte rapidement et sans difficulté.
- Une seule pression et tous vos volets se ferment.
- Sécurisant : détection d'obstacle selon la norme NF 26-341. En cas d'obstacle, le volet revient en position initiale.
- Souplesse d'utilisation : pilotez l'ouverture de l'ensemble ou une partie de vos volets. Possibilité d'arrêter les volets en position entrebâillée.
- Neuf ou rénovation : s'adapte sur tous types de volets battants y compris sur vantaux liés avec notre accessoire compas multivantaux W0000400.
- Produit conçu et fabriqué dans nos ateliers en France, testé unitairement et garanti 2 ans.

Contenu du kit :
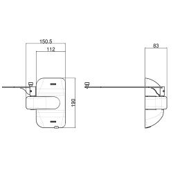
- 1 moteur droit (vue de l'extérieur) + électronique
- 1 bras
- 1 rail + embouts
- 1 capot + caches
- 1 lot de visserie (vis, chevilles, manchon, entretoise)
- 1 télécommande radio Gamme BOSys 433.92 MHz
- 3 mètres de câble d'alimentation 220/230V

Nuancier RAL Autres coloris en option : nous contacter par email.

Options :
SU9300 : compas en inox pour vantaux liés
SU9309 : horloge radio programmable
SU9310 : répéteur radio programmable (pour doubler la portée)
SU9311 : télécommande radio programmable
SU9313 : interrupteur radio programmable
C0007105BR : rail de guidage longueur 1,2 m (idéal en cas de volet persienné)
Autres bras blancs ou noirs
Fermeture électromagnétique ou électromécanique
Toutes les pièces détachées pour SLID'UP BRA-VO

Documentation technique

Présentation vidéo

Fabriqué pour vous

De la conception à la commercialisation, SLID'UP by Mantion est le spécialiste Français des systèmes coulissants et des motorisations pour l'habitat.

Marque

Fiche technique

Utilisation / Application Volet battant
Temps de fermeture 16 s
Couleur Blanc
Type de commande Radio
Nombre de vantail (vu de l'extérieur) 1 droit
Type de fin de course Dynamique (arrêt sur obstacle)
Epaisseur max. vantail 40 mm
Puissance max 100 W
Surface max du vantail 1.6 m²
Poids max / vantail 50 kg
Largeur max. / vantail 80 cm
Position du moteur A droite
Couple moteur 25 Nm
Type de moteur Motoréducteur à courant continu
Tension moteur 24 V DC
Type de montage En applique
Nombre de vantaux (vue de l'extérieur) 1 droit
Nombre de moteurs 1
Nombre de moteurs / vantail 1
Temps d'ouverture 16 s
Température d'utilisation -20°C à +60°C
Type de produit Kit motorisation
Indice de protection IP54
Fréquence radio 433.92 MHz
Gamme SLID'UP BRA-VO
Tension alimentation 230 V AC
Usage Extérieur
Marque SLID'UP by Mantion
Garantie 2 ans
Origine de fabrication France

Qualité garantie

SLID'UP by Mantion garantit tous ses systèmes coulissants pendant 5 ans et ses motorisations pendant 2 ans.

Livraison rapide

La livraison des produits en stock est assurée sous 3 à 5 jours à votre domicile. L'expédition est effectuée depuis notre société située en France.

Paiement sécurisé

Le paiement en ligne de vos commandes est entièrement sécurisé par carte bancaire, 4x sans frais, Paypal, chèque ou virement.

Newsletter

Avis clients

FAQ

VOIR PLUS DE QUESTIONS

VOIR TOUTES LES QUESTIONS

Articles de blog